| 名称 | La CASA清水谷 |
| 所在地 | 大阪市天王寺区清水谷町20-2 |
| 交通 | 大阪メトロ谷町線「谷町六丁目」駅 徒歩7分 長堀鶴見緑地線「玉造」駅 徒歩8分 JR大阪環状線「玉造」駅 徒歩11分 |
| 構造 | 鉄筋コンクリート造 6階建て |
| 築年 | 平成10年1月 |
令和元年10月共有部分大規模改修
【塗装工事】高圧洗浄(壁面、天井)、外壁塗装、排水溝・雨樋塗装、エントランス柱塗装、EV扉塗装
【防水工事】バルコニー、廊下、階段
【タイル工事】エントランス、アプローチ タイル貼替
【設備工事】オートロック取替、全戸モニター付インターフォン新設、庭園灯・スポットライト新設、防犯カメラ3台新設、宅配ボックス新設、集合郵便ポスト取替、ゴミ捨て場取替、ペット洗い場新設

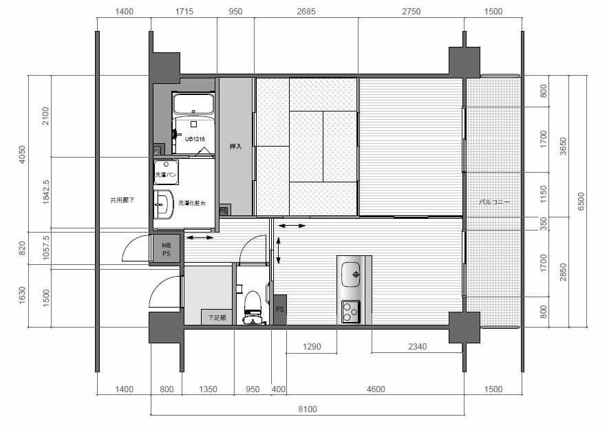
402号室 専有面積 50.69㎡ 間取り 2LDK
◎2019年4月 室内全面リフォーム完成
床塩ビシート張替え(玄関・廊下・洗面・洋室・LDK)
クロス張替え(玄関・廊下・洗面・和室・洋室・LDK)
ドア・引き戸交換(洗面脱衣室・リビング)
戸襖交換(和室・洋室)
畳表替え、襖張替え(和室)
システムキッチン・システムバスルーム・洗面化粧台・ウォシュレット付きトイレ・給湯器・エアコン 新設置


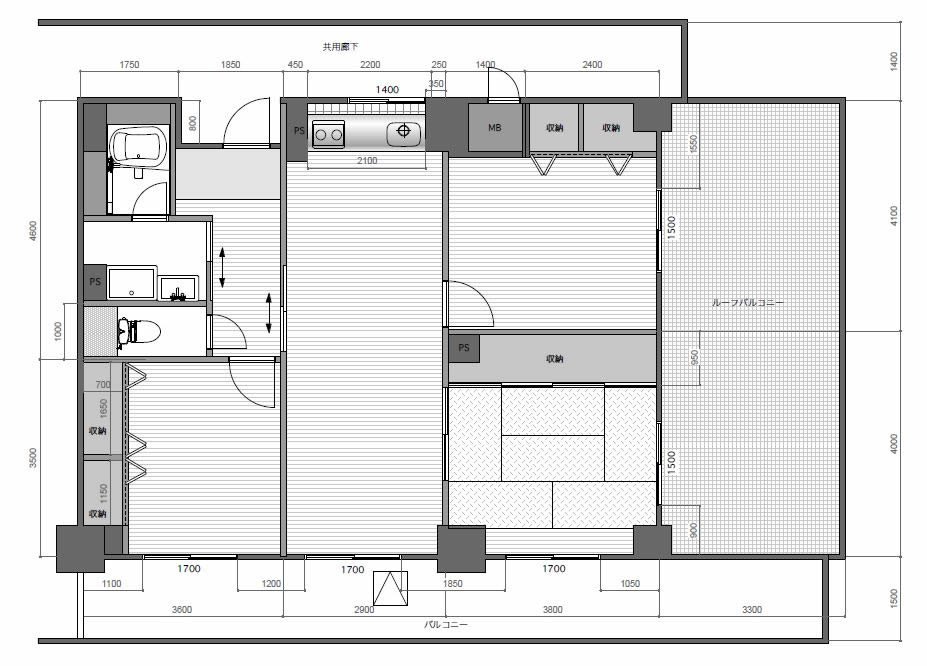
602号室 専有面積 83.43㎡ 間取り 3LDK
◎2019年7月 室内全面リフォーム完成
床塩ビシート張替え(玄関・廊下・洗面・洋室・LDK)
クロス張替え(玄関・廊下・洗面・和室・洋室・LDK)
ドア交換(洋室2室・トイレ) 引き戸交換(洗面脱衣室・リビング)
戸襖交換・畳表替え・襖張替え(和室)
システムキッチン・洗面化粧台・システムバスルーム・ウォシュレット付トイレ・給湯器 新設置


